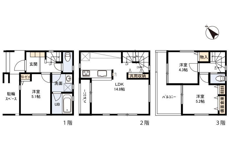
■所在地:世田谷区三宿2丁目
■販売価格:13,800万円
■交 通:田園都市線「三軒茶屋」駅徒歩11分
■土地面積(借地面積):89.07㎡
■建物面積:151.26㎡(車庫17.89㎡・ポーチ3.08㎡含む)
■建築確認番号:第AI建築確認00-2501006号
■土地権利:旧法借地権(20年)
■地目:宅地
■完成:2026年10月上旬予定
■地 代:26,990万円(月額)
■都市計画:市街化区域
■建ぺい率:60%
■容積率:160%
■接道状況:北側約3.64m
■用途地域:第一種中高層住居専用地域
■総頭数:1棟
■販売頭数:1棟


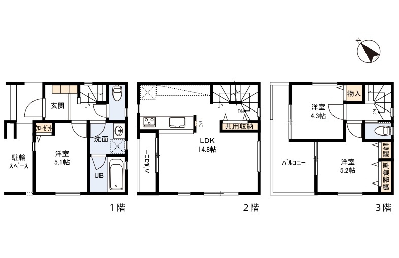
■所在地:杉並区永福町3丁目
■販売価格:11,980万円
■交 通:京王井の頭線「西永福」駅徒歩4分、「永福」駅徒歩8分
■土地面積:71.74㎡
■建物面積:129.02㎡(車庫部分18.84㎡含む)
■建築確認番号:第AI建築確認00-2500374号
■土地権利:所有権
■地目:宅地
■完成:予定2026年2月下旬
■引渡:2026年3月上旬
■都市計画:市街化区域
■建ぺい率:60%
■容積率:150%
■接道状況:東側約4.0m
■用途地域:第一種低層住居専用地域
■総頭数:1棟
■販売頭数:1棟



■所在地:江東区東陽1丁目丁目
■販売価格:9,468万円
■交 通:東西線「木場」駅徒歩5分
■土地面積:52.17㎡
■土地権利:所有権
■地目:宅地
■現況:更地
■引渡:2026年4月下旬
■都市計画:市街化区域
■建ぺい率:80%
■容積率:327%
■接道状況:東側約5.46m
■用途地域:商業地域
■販売区画:1







■所在地:池袋3丁目新築戸建、全3棟 販売1棟
■販売価格:B号棟8,180万円
■交 通:JR山手線「池袋」駅徒歩12分・東京メトロ「要町」駅徒歩13分
■土地面積:B号棟44.29㎡
■建物面積:B号棟76.93㎡
■建築確認番号:第25UDI1T建00384号
■土地権利:所有権
■地目:宅地
■完成:2025年11月下旬
■引渡:2025年11月下旬
■都市計画:市街化区域
■建ぺい率:60%
■容積率:300%
■用途地域:第一種住居地域
■販売頭数:1棟
●●●● その他の取扱い物件は、『リクルートの不動産ポータルサイト[SUUMO(スーモ)](別サイト)』をご覧ください。●●●●


■所在地:中野区江古田4-17-19
■価 格:7,790万円
■交 通:西武新宿線「沼袋」駅徒歩10分
都営大江戸線「新江古田」駅徒歩
15分
■専有面積:99.28㎡
■バルコニー面積:不明
■間 取:3LDK
■構 造:鉄筋コンクリート造
■所在階:1階/7階
■権 利:所有権
■引渡条件:相談
■管理費:月額16,200円
■修繕積立金:月額12,070円
■駐車場:空有 月額5,000~18,000円
■駐輪場:月額400~600円
■現 況:空室
■その他:ペット飼育可
■令和6年3月リフォーム工事完了予定



■所在地:中野区野方6-52-5
■価 格:5,780万円
■交 通:西武新宿線「野方」駅徒歩8分
「都立家政」駅徒歩8分
■専有面積:71.49㎡
■バルコニー面積:不明
■間 取:3LDK
■構 造:鉄骨鉄筋コンクリート造
■所在階:2階/8階
■権 利:所有権
■引渡条件:相談
■管理費:月額19,845円
■修繕積立金:月額15,876円
■駐車場:空無
■現 況:空室
■令和5年11月リフォーム工事完了



■所在地:中野区南台3-6-14
■価 格:5,990万円
■交 通:東京メトロ丸ノ内線
「中野富士見町」駅徒歩11分
「方南町」駅徒歩12分
「中野新橋」駅徒歩15分
■専有面積:57.15㎡
■バルコニー面積:6.75㎡
■間 取:3LDK+WIC
■構 造:鉄筋コンクリート造
■所在階:6階/地下1階付10階
■権 利:所有権
■引渡条件:相談
■管理費:月額13,700円
■修繕積立金:月額9,830円
■駐車場:月額26,000~30,000円
■バイク置場:月額1,000円
■駐輪場:月額200~400円
■現 況:空室
■その他:ペット飼育可
(小鳥・観賞用魚のみ可)
■令和5年9月リフォーム工事完了



■所在地:目黒区青葉台3-12-11
■価 格:3,880万円
■交 通:東急田園都市線「池尻大橋」
駅徒歩9分
■専有面積:34.81㎡
■バルコニー面積:3.36㎡
■間 取:1LDK
■所在階:3階/地下1階4階建
■構造:鉄筋コンクリート造
■権 利:所有権
■引渡条件:相談
■管理費:月額13,580円
■修繕積立金:月額9,050円
■バイク置場:空有 月額1,000円
■駐輪場:空有 月額300~500円
■トランクルーム:空有 専用使用権
月額1,300円
■現 況:空室
■令和5年6月リフォーム工事完了



■所在地:目黒区青葉台4-6-17
■価 格:3,399万円
■交 通:京王井の頭線「神泉」駅徒歩7分
田園都市線「池尻大橋」駅徒歩11分
山手線・他8路線「渋谷」駅徒歩13分
■専有面積:35.24㎡
■バルコニー面積:4.78㎡
■間 取:1LDK
■所在階:9階/17階建
■構造:鉄骨鉄筋コンクリート造
■権 利:所有権
■引渡条件:相談
■管理費:月額3,490円
■修繕積立金:月額11,500円
■駐車場:空有 月額23,000~34,500円
■現 況:空室
■令和5年5月リフォーム工事完了



■所在地:目黒区大橋2-4-8
■価 格:4,799万円
■交 通:東急田園都市線「池尻大橋」
駅徒歩8分
■専有面積:47.65㎡
■バルコニー面積:7.00㎡
■間 取:2LDK
■所在階:2階/11階建
■構造:鉄骨鉄筋コンクリート造
■権 利:所有権
■引渡条件:相談
■管理費:月額13,500円
■修繕積立金:月額10,010円
■駐車場:空無 月額25,000円
■バイク置場:空無 月額3,000円
(400㏄まで)
■ミニバイク置場:空無 月額1,500円
(50㏄まで)
■駐輪場:空有 月額500円
■トランクルーム:空有
月額2,000~10,000円
■現 況:空室
■その他:ペット飼育可(飼育細則有)
■令和6年2月リフォーム工事完了



■所在地:豊島区上池袋4-12-14
■価 格:9,980万円
■交 通:埼京線「板橋」駅徒歩10分
東武東上線「北池袋」駅徒歩10分
■専有面積:97.14㎡
■バルコニー面積:17.29㎡
■ルーフバルコニー面積:25.02㎡
■間 取:3LDK
■構 造:鉄筋コンクリート造陸屋根
■築年数:平成16年1月
■所在階:6階/6階建
■権利:所有権
■引渡条件:相談
■管理費:月額24,870円
■修繕積立金:月額17,480円
■ルーフバルコニー使用料:750円
■駐車場:空無 月額28,000~33,000円
■バイク置場:空有 月額1,000~2,000円
■駐輪場:空有 月額150~300円
■現 況:空室
■そ の 他:ペット飼育可(飼育細則有)
■令和6年1月リフォーム工事完了

●●●● その他の取扱い物件は、『リクルートの不動産ポータルサイト[SUUMO(スーモ)](別サイト)』をご覧ください。●●●●
不動産売買、賃貸物件、オフィス探しなど
お気軽にお問合せください。